Prostor číslo 6

Tento bytový prostor je k dlouhodobému i krátkodobému pronájmu nebo ke komerčnímu využití.
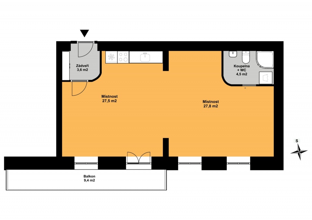
Bytový prostor o dispozici 2+kk a výměře 63,36 m2 se nachází ve 3. nadzemním patře.

V případě zájmu nás kontaktujte.