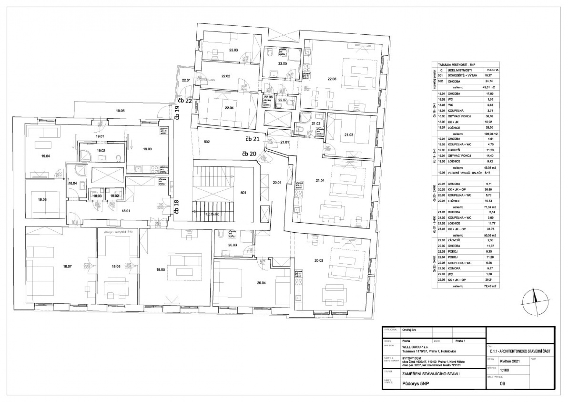
5.NP - článek